Data
- 建物
- 戸建て
- 所在地
- 須賀川
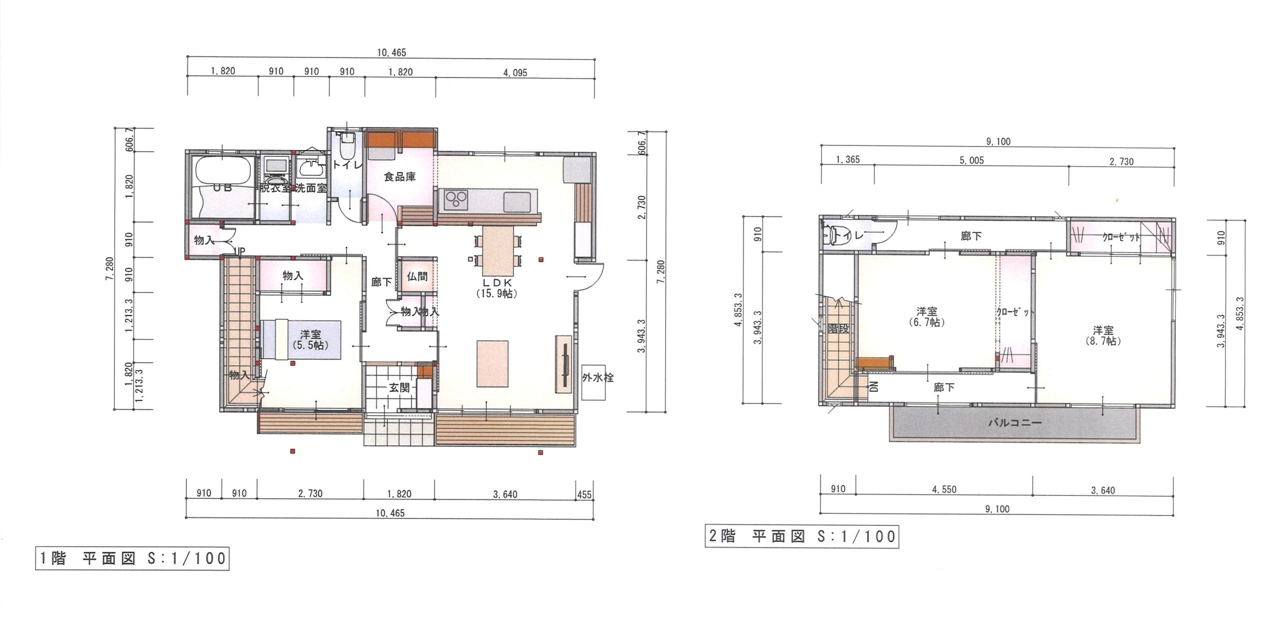
- 間取り
- 3ⅬⅮK
- 築年数
- 約40年
- 竣工年月
- 2025.9




北側に対面キッチンを配置し、料理をしながらリビングで過ごす家族とのつながりを感じられる空間に生まれ変わりました。
リビングは梁や柱をあえて見せることで、木の質感が映える和モダンのデザインに。大きな窓から光が差し込み、開放感あふれる心地よい空間となっています。
また、随所に収納を計画的に配置することで、日々の片付けもスムーズに。動線も整理され、暮らしやすさと美しさを兼ね備えた住まいが完成しました。





建物の顔となる外壁を貼り替え、2トーンのモダンなデザインへと一新しました。これにより、住まい全体の印象が洗練され、魅力的に生まれ変わっています。
また、掃き出し窓の前には新たに濡れ縁を設置。リビングからの出入りがしやすくなったほか、庭を眺めながらのちょっとした休憩スペースや、ガーデニング用品の手入れなど、アウトドアリビングのような感覚で利用できる便利な空間となりました。日々の暮らしに心地よさと利便性をもたらします。
Floor Plan
Before

After

Staff Voice
広々としたLDK: キッチンとリビングが一体となり、家族のコミュニケーションが取りやすい開放的な空間になりました。
食品庫や勝手口が近くにあり、家事もスムーズに行えます。
豊富な収納: 1階と2階の各所に収納スペースが確保されており、家全体をすっきりと保つことができます。
このリフォームにより、日々の生活が一層円滑となり、ご家族の暮らしが豊かに彩られる「ゆとり」が生まれました。

